02054.87 27 11
info@x-stahl.de
Menu
Home
Unsere Leistungen
MKO-TÜRZARGEN
Standartumfassungszargen
Ständerwerkumfassungszargen
Umfassungszargen für Ganzglastüren
Eckzargen
Umfassungszargen mit Oberlicht
Pendeltürzargen
Durchgangszargen
Doppelfalzzargen
Weitere Ausführungen
Auszug aus der Norm DIN 18111
Zargenfertigungsliste
Projektbeispiele
Kontakt
Impressum
Datenschutzerklärung
MKO-TÜRZARGEN
Türzargen aus Edelstahl
Home
Durchgangszargen
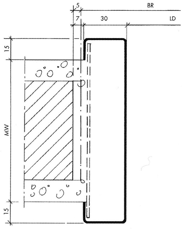
Durchgangszarge für festes Mauerwerk
Teilweise verschweißte Gehrungen (im Spiegelbereich nicht verschweißt)
1 Transportschiene
Spiegelbreite 30/30 mm
30 mm Bodeneinstand
Je Seite 3 Maueranker
Ausstanzungen in 1050 mm Drückerhöhe für Falle und Riegel nach DIN
Zarge mit 3-seitig umlaufener Dichtschnur (EPDM WZ 800), Farbe schwarz/grau
Putzkante 15 mm